Установка ЗДТ на ВАЗ 2108-15, Приора, Гранта, Калина и их модификации

Большинство стандартных моделей Ваза имеют задние барабанные тормоза, но сегодня можно купить и даже самостоятельно установить на ВАЗ 2108-15, Приору, Гранту и Калину и их модификации задние дисковые тормоза, которые идеально подходят, без особых усилий и сложностей монтируются. Все, кто их установил, утверждают, что у них масса преимуществ, по сравнению с барабанными тормозами.


Рассмотрим, в чем же дисковые тормоза лучше проявляют себя, чем барабанные:
Торможение становится более надежным, уменьшается тормозной путь;
Тормозные усилия распределяются более равномерно, учитывая, что ВАЗ 2108-15 – переднеприводный автомобиль;
Возникает эффект более быстрого срабатывания после нажатия на педаль;
Снижаются неподрессоренные массы;
Лучше происходит рассеивание тепла, что особенно важно во время движения на горной дороге или при активных разгонах/торможениях. По этой причине тормозная система лучше охлаждается;
Дисковые значительно проще демонтировать и менять;
Исчезает необходимость регулировать ручник после каждого ремонта задних тормозов, хотя в первый раз придется это сделать;
Не примерзают зимой после мойки, как барабанные;
Дисковые задние тормоза, установленные на ВАЗ 2108-15, значительно удобнее контролировать и своевременно замечать износ колодок.
Не обошлось в замене тормозов на дисковые и без знаменитой «ложки дегтя», хотя касается она скорее именно тех проблем, которые может вызвать их установка.
Во-первых, их монтаж на ВАЗ 2108-15, наши органы правопорядка рассматривают как изменение конструкции.
Что это может повлечь за собой?
Штраф при прохождении техосмотра;
Можно оказаться элементарно неправым в спорном ДТП, если сотрудники ГИБДД акцентируют внимание что у вас «не правильные» тормоза;
Да и страховая компания тоже может счесть это причиной для невыплаты страховки.
Во-вторых, дополнительно нужно будет дорабатывать ручник – или менять его на гидроручник, хотя последний со временем ослабевает.
В-третьих, необходима доработка или тщательная регулировки колдуна, чтобы на ВАЗ 2110 задние колеса не тормозили сильнее передних, так как это непременно вызовет занос, особенно на льду или мокром асфальте. Для этого иногда даже приходится на четверть, а то и больше стачивать колодки.
Особенности конструкции
Задние дисковые тормоза лучше приобретать полным комплектом. На Ваз 2108-15 подходят тормозные диски 13, 14 и 15 дюймов (вентилируемые или не вентилируемые). Постарайтесь приобрести сертифицированные диски, чтобы их не пришлось дорабатывать.


Нужен также суппорт, бывающий трех видов, поэтому подбирать его нужно именно под соответствие диску. С суппортом идут шланг и тормозные колодки. В комплект входит универсальный, подходящий для всех суппортов фиксатор – планшайба.
Прежде чем устанавливать дисковые, нужно демонтировать старые задние тормозные механизмы (барабанные) ВАЗ 2108-15.
Делается это следующим образом:
Снимаем колесо;
Снимаем тормозной барабан;
Убираем колодки;
Снимаем с колеса ступицу, предварительно открутив тормозную трубку.
Следует подготовиться к тому, что демонтаж будет нелегким. Мало того, что при эксплуатации тормоза имеют неприятное свойство прикипать, так еще и болты «приваривает» коррозия. Поэтому желательно гайки и сами болты обработать специальным средством (например WD 40), чтобы не сорвать их грани.
Снятую трубку важно чем-нибудь заглушить, чтобы не вытекала тормозная жидкость, а в систему не подсасывало воздух. После этого – сбивать ступицу. Лучше всего это получается, если приложить к опорному диску с обратной стороны доску или рейку, и бить по ней молотком, перемещая удары: один – снизу, другой – сверху. Так вы не нанесете серьезных повреждений диску.
Установка ЗДТ:
Пришел черед монтировать дисковые тормоза, вместо удаленных задних барабанных.
Сбив ступицу, будем ставить ее обратно, но другим образом:
Устанавливать ее следует через пластину, в которую уже вмонтирован суппорт. Внимательно следите за совпадением всех отверстий. Особое внимание – центровке;
Далее молотком следует подрихтовать угол балки, чтобы в нее не упирался суппорт;
Теперь можно одевать на ступицу тормозной диск, проложив между этими деталями дистанционные шайбы, и закрепить диск скобой;
Ставим тормозные колодки от ВАЗ 2110;
Сначала к суппорту, а затем к трубке тщательно и надежно прикрепляем тормозной шланг;
Чтобы уменьшить тормозные усилия задних тормозов по сравнению с передними, нужно частично сточить фрикционный материал колодок.
Проверка тормозов:
Проведя все вышеописанные операции – сначала на одном колесе, а затем и на втором, нужно еще проверить систему на герметичность. Первая фаза – просто нажать на педаль.
На то, что все сделано нормально, указывает то, что педаль нажимается с усилием, довольно туго.
Но этого недостаточно. Попросите кого-то другого жать на тормозную педаль, а сами в это время попробуйте повернуть детали, составляющие ваши новые задние дисковые тормоза.
Если ничего не движется, значит, у вашего ВАЗ 2110 теперь есть новые задние дисковые тормозные системы — лучше и надежнее прежних.
Для максимального сокращения тормозного пути рекомендуется установить вакуумный усилитель.

Прокачка и регулировка
После любых манипуляций с тормозной системой (неважно, ремонтировали вы задние, передние или стояночный), на ВАЗ 2108-15 жизненно необходимо еще прокачать тормоза, чтобы в них нигде не образовалась воздушная пробка, способная свести на нет возможность затормозить в нужный момент.
Делать это удобно вдвоем, но можно и самому, хотя для этого нужно кое-какое дополнительное оборудование. Как прокачать тормоза на ВАЗ 2108-15, знают многие. Главное, не забывать это делать по диагонали, всегда начиная с передних колес, причем первым прокачиваем правое.
После прокачки еще нужна проверка на тормозные усилия. Для этого нужен наблюдатель со стороны. Вы разгоняетесь и резко тормозите, а другой человек наблюдает, как срабатывают тормоза. Должны сработать вначале передние, затем (с небольшим отрывом) – задние, причем тормозное усилие должно быть большим у передних.
Думаю данная статья была вам полезна и вы ее прочитали с удовольствием. Удачи вам и ровных дорог!
Установка задних дисковых тормозов на ВАЗ 2110
Владельцы отечественной «десятки» знают, что штатная тормозная система предусматривает использование барабанных тормозов сзади и дисковых впереди .

С точки зрения надежности особых претензий к барабанам нет, однако задние дисковые тормоза на ВАЗ 2110 служат лучше, эффективнее и дольше. Особенно замена актуальна для тех случаев, когда повышается мощность силовой установки. Тормозная система обязательно подлежит модернизации.
Недостатки барабанных механизмов
![]()
Барабанные
Несмотря на то, что барабанные тормоза грамотно рассчитаны, монтированы и отрегулированы на заводе, из-за чего вмешательство в них не требуется, определенные недостатки они имеют:
- Это устаревшее решение, которое практически не встречается на новых автомобилях европейских ведущих производителей;
- Если сравнивать с дисковыми механизмами, барабаны существенно уступают в эффективности;
- На барабанах отсутствует охлаждение, вентиляция, что приводит к перегреву при больших нагрузках на автомобиль;
- Барабаны имеют закрытое пространство, потому удалить загрязнения и продукты износа в виде черной пыли, подтеки ТЖ и попавшую влагу естественным путем не получится. Для этого проводится чистка.
Преимущества дисковых механизмов
![]()
Комплектующие
К основным преимуществам замены барабанных тормозов на дисковые относят:
- Повышенная надежность при торможении;
- Уменьшенный тормозной путь;
- Равномерное распределение тормозного усилия, что особенно важно для переднеприводной «десятки»;
- Тормоза быстрее реагируют при нажатии на педаль тормоза;
- Неподрессоренные массы уменьшаются;
- Более эффективное охлаждение при движении по горным участкам и при резких разгонах или торможениях;
- Дисковые механизмы более просты в замене и демонтаже;
- Не требуется регулировать ручной тормоз после каждого ремонта. Нужно сделать это лишь раз после установки и все;
- Диски не примерзают в зимний период времени после мытья, в отличие от барабанов;
- Дисковые механизмы позволяют вовремя определить износ колодок.
Выбор дисковых тормозов
Особое внимание при покупке обратите на качество и комплектацию дисковых тормозов. Выбор следует делать в пользу проверенных производителей, которые могут предоставить сертификаты соответствия.
![]()
Диски
Сами понимаете, что на тормозах экономить глупо по крайней мере с точки зрения собственной безопасности. Также рекомендуется приобретать вентилируемые диски . Дополнительно можно оснастить опцией ABS или гидравлического стояночного тормоза.
Если вы ранее не модернизировали тормоза на передних колесах, тогда сзади устанавливаются диски на 13 дюймов. Если же впереди стоят диски больше по размеру, нежели штатные, тогда задние выбирайте на 1 дюйм меньше.
Не забудьте про важность суппорта, который выпускается в трех вариантах исполнения. Его выбирают в соответствии с диском. К суппорту прилагается тормозная колодка и шланг. Плюс в каждом комплекте имеется планшайба. Это универсальный фиксатор, который подойдет под любой тип суппорта.
Демонтаж и установка
Разумеется, установить новые дисковые тормоза на заднюю ось ВАЗ 2110 вы не сможете, пока не снимите барабанные механизмы. Для их демонтажа делается следующее:
- Снимается колесо;
- Демонтируется барабан;
- Снимаются колодки;
- Откручивается тормозная трубка;
- Снимается ступица с колеса.
На словах это выглядит просто, это факт. Но на деле могут возникнуть определенные сложности. Прежде всего, по причине прикипания элементов и приставания болтов крепления в результате воздействия коррозии. Дабы не мучиться с ними, обработайте заранее всемогущим средством WD40, которое позволит растворить ржавчину и «накипь», и без серьезных усилий и вреда граням крепежных элементов снять их.
![]()
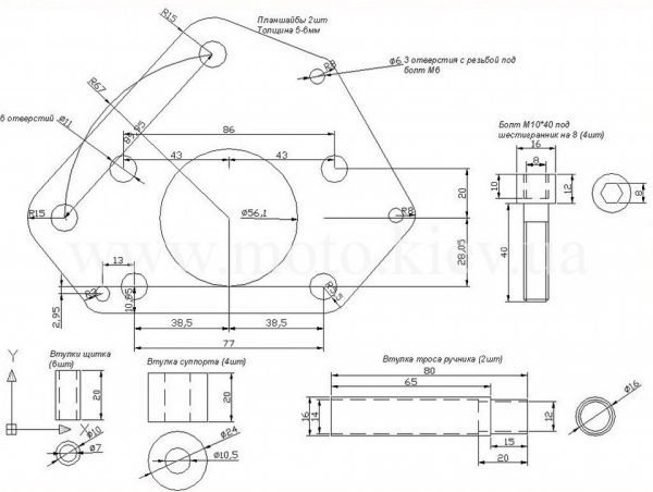
Чертежи крепежей
Не забудьте заглушить тормозную трубку, чтобы из нее не вытек гидравлический раствор. Плюс это позволит не попасть в систему лишнему воздуху. После этого можно демонтировать ступицу путем нанесения по ней ударов поочередно снизу и сверху, но обязательно через подкладку из доски. Это позволит не повредить тормозной механизм.
Теперь приступаем к установке, при котором старые барабаны отправляются на заслуженный отдых, а на их место приходят новые дисковые тормоза.
- Когда вы собьете ступицу, ее нужно поставить на место.
- Устанавливайте элемент через пластину с вмонтированным в нее суппортом.
- Убедитесь, что все отверстия совпадают и центровка выполнена правильно.
- С помощью молотка подкорректируйте угол расположения балки. Суппорт не должен в нее упираться.
- На ступицу насаживайте диск тормозной системы. Между элементами ставится дистанционная шайба и скобами диск фиксируется на своем новом месте.
- Установите теперь тормозные колодки, подобранные именно под ВАЗ 2110.
- Сперва к суппорту прикрепите тормозной шланга, а затем соедините его с трубкой.
- Фрикционный материал колодки обязательно частично стачивается. Это нужно для того, чтобы тормозное усилие на задних тормозах оказалось меньше, чем на передних.
Проверка качества установки
![]()
Вентилируемые
Когда вы завершите процесс сборки, обязательно проверьте, насколько герметично была выполнена установка на каждом из колес.
- Нажмите на педаль тормоза. Если вы все сделали верно, нажатие будет сопровождаться тугостью, усилием;
- Вы или ваш помощник нажмите на педаль еще раз, а второй человек тем временем начнет поворачивать новые дисковые тормоза;
- Если сдвинуть ничего не удалось, значит, сборка выполнена качественно и надежно.
Регулировка
После установки дисковых механизмов обязательно проводится процедура проверки герметичности и, конечно же, прокачка .
Но на этом работу считать завершенной нельзя, поскольку требуется отрегулировать тормозное усилие.

Эффективность дисковых тормозов значительно выше барабанных, потому регулятор усилия торможения подлежит обязательной настройке.
- Этот узел расположен у левого колеса, закреплен на кузове и имеет соединение с балкой по средствам небольшой тяги.
- Крепление тяги к регулятору (колдуну) ослабьте, переместите ее на 2-4 миллиметра назад.
- В таком положении тяга фиксируется.
- Подобные манипуляции позволяют обмануть колдуна. Он будет распределять меньшее тормозное усилие на задние тормоза.
- Покатайтесь на машине при благоприятных погодных условиях в течение нескольких дней после замены тормозной системы, аккуратно тормозите, не давите резко на педаль.
- Обратите внимание на тот факт, что «прокатка» может как позитивно, так и негативно отразиться на поведении автомобиля. Если машина ведет себя хорошо, значит, вам удалось правильно заменить барабаны на диски. При возникновении проблем с устойчивостью и балансом тормозов, регулировку желательно доверить специалистам с хороших станций технического обслуживания.
Установка дисковых механизмов сзади — это грамотное и правильное решение для всех владельцев ВАЗ 2110. Конечно, если барабаны ведут себя хорошо, на качество торможения нет нареканий, и вы не собираетесь повышать мощность силового агрегата, тогда ярко выраженной потребности в переходе на дисковые тормоза нет. Но если вы это со временем сделаете, вы наглядно на собственном примере ощутите разницу между дисками и барабанами.
Задние дисковые тормоза на ВАЗ-2107: установка
Владельцы классических моделей АвтоВАЗа хорошо знают, что тормоза на этих автомобилях всегда оставляли желать лучшего, в том числе и на «семерке». Ситуацию можно улучшить. Для этого устанавливают задние дисковые тормоза на ВАЗ-2107. Эффективность данных систем известна каждому. Поэтому очень часто автовладельцы меняют барабанные устройства на их дисковые аналоги.

Процедуру можно сделать самостоятельно. Но необходимо учитывать, что процесс достаточно трудоемкий. Кроме того, для этой операции понадобится наличие специального оборудования. Но для владельцев «классики» нет ничего невозможного.
Советы и рекомендации
Задние дисковые тормоза на ВАЗ-2107 более эффективны. Именно поэтому после монтажа их на заднюю колесную пару понадобится дополнительно отрегулировать давление в тормозном контуре. Если этого не сделать, то он будет включаться значительно раньше, чем передний. Это может стать причиной заноса. Для монтажа необходимо будет проводить сварочные, а также фрезеровочные и токарные работы. Необходимо учитывать, что автомобиль, в который внесены такие конструктивные изменения, не сможет пройти техосмотр. Еще следует учитывать, что любые вмешательства в тормозную систему автомобиля – это довольно опасное мероприятие. Если нет уверенности в наличии соответствующих навыков, тогда лучше оставить идеи самостоятельно установить дисковые тормоза на ВАЗ и доверить эту задачу профессионалам.
Достоинства такого решения для ВАЗ-2107
Если все работы по замене барабанных элементов на их дисковые аналоги выполнялись качественно и профессионально, то характеристики работы системы значительно улучшатся. Среди преимуществ такой доработки можно выделить высокую эффективность при торможении.

Если улучшить вентиляцию дисков, то это обеспечит надежность работы системы при интенсивном использовании. На дисковых тормозах, в отличие от их барабанных аналогов, не накапливается влага. Она значительно ухудшает эффективность процесса торможения. Зимой из-за нее тормоза могут «схватываться». Задний мост заблокируется.
Необходимое оборудование и приспособления
Чтобы установить дисковые тормоза на задний мост ВАЗ-2107, понадобится некоторое оборудование. Это полуоси в количестве двух штук в комплекте со стопорными кольцами, сальниками, а также подшипниками. Еще стоит приобрести или достать суппорта и диски от ВАЗ-2108. Но можно использовать и другие комплекты. Понадобятся крепежные элементы. Это болты для монтажа суппортов, различные шайбы и гайки, хомуты. Также приобретают проставки для передних колес и кронштейны для монтажа суппортов. Подобные детали требуется изготовить индивидуально.
О главном тормозном цилиндре
Систему сначала нужно слегка доработать. Можно сделать это при малом бюджете или приобрести дорогие комплектующие – суппорта и регуляторы давления. Но в первую очередь потребуется выполнить замену главного цилиндра. Давление, которое он может создать, имеет не особо большую силу. Да и по надежности он не слишком хорош.
Доработка передних
Как происходит переделка задних тормозов? Дисковые (ВАЗ-2107) устройства подразумевают доработку переднего контура. Здесь рассчитывают на то, что автомобиль после всех переделок будет ездить на 14 или 15-дюймовых дисках. Возможно, это выбивается из бюджета и может кому-то показаться ненужным. Однако это делается не только из эстетических соображений. Доработка связана с устойчивостью и управляемостью автомобиля. Наиболее оптимальным вариантом в этом случае является замена штатных передних изделий на комплект передних тормозов от ВАЗ-2112. Данный комплект подойдет под 14-дюймовые колеса.

Кроме того, диски в этом случае – вентилируемые. Можно подобрать и другой комплект задних дисковых тормозов на ВАЗ-2107. Что касается суппортов, то устанавливают штатные элементы от все того же ВАЗ-2112. Диски можно приобрести ATE или любые другие на усмотрение. Но продукция ATE – вентилируемая и имеет проточки. Эти диски отлично установятся на переднюю ступицу без дополнительных доработок. Для монтажа данного комплекта потребуется провести некоторые расчеты и заказать (либо изготовить самостоятельно) крепление для суппорта. Штатные по определенным причинам не подойдут. Крепление для суппорта должно иметь толщину не более 5-7 миллиметров. Изготавливать его лучше всего из прочных сталей или титана. В продаже можно поискать готовые изделия. Пара таких креплений обойдется в 50 долларов.
О задних тормозах: что купить?
Раньше FIAT-124 имел дисковые тормоза сзади, однако когда модель начала выпускаться уже на отечественных конвейерах, то от них по целому ряду причин решили отказаться. Давайте посмотрим, что еще потребуется для перехода на задние дисковые тормоза на ВАЗ-2107. В первую очередь необходимо приобрести комплект тормозов от бренда ATE. Но также можно купить и более дорогую версию. Это Power Disk от того же бренда. Хотя по эффективности он не сильно отличается от более дешевых аналогов.

Установка задних дисковых тормозов на ВАЗ-2107 требует проточки задней полуоси до посадочных размеров дисков. Лучше заказать данную операцию на каких-нибудь заводах или частных промышленных предприятиях. Такой подход гарантирует высокую точность работы при относительно низких затратах. Так же, как и в случае с передними тормозами, понадобится рассчитать и изготовить нештатные переходники для крепления заднего суппорта. Есть мнение, что подойдут такие же переходники, как и на передних колесах. Вместе с установкой задних дисковых тормозов рекомендуется заменить подшипники в полуоси. Например, хорошо себя зарекомендовали изделия от производителя SKF.
Процесс установки: демонтаж
Первым делом выполняется демонтаж полуосей на заднем мосте. Затем детали тщательно очищают. Можно промыть их в бензине или керосине. Но если есть новые полуоси, старые можно просто выбросить. Затем из тормозной системы сливается жидкость. Далее демонтируются узлы и детали барабанного тормозного механизма. Необходимо оставить только трубки. Затем снимают стопорные кольца и извлекают ступичный подшипник. Проделать это можно только с помощью пресса. Кольцо сделано так, что отрывная нагрузка равна пяти тоннам. Можно обойтись и без пресса. Кольца просто варварски распиливаются болгаркой. Но нужно делать так, чтобы не повредилась сама полуось. Пилят не до конца. Далее, кольцо раскалывается зубилом, и вынимается подшипник. Полуоси должны протачиваются под внутренний посадочный диаметр тормозных дисков.
Монтаж диска на полуось, сборка
Прежде чем будет проведена сборка полуосей, все детали рекомендуется тщательно вымыть и очистить в бензине. Затем устанавливают пыльник полуосей, изготовленный нештатный кронштейн для крепления суппорта и компенсирующие кольца. Далее промывают подшипник полуоси. Затем элемент смазывается и запрессовывается на полуось. Это лучше делать, используя обрезок трубы. Подшипник запрессовывают до ограничителя. Труба должна иметь такой диаметр, чтобы она уперлась во внутреннее кольцо на подшипнике.

Процесс запрессовки происходит следующим образом. Труба упирается в кольца, а в это время молотком бьют по другому краю. Стоит правильно подобрать трубу и качественно установить. Она не должна упираться во внешнее кольцо подшипника. Затем следует убедиться, что посадка подшипника выполнена надежно и качественно. Далее разогревают стопорное кольцо. Греть нужно сильно, докрасна. Затем кольцо устанавливают на полуось. Если оно садится неохотно и неплотно, его срезают и устанавливают новое. Чаще всего деталь плохо садится из-за недостаточного разогрева. Необходима мощная горелка. Когда кольцо остынет, устанавливают проставку и непосредственно тормозной диск. Теперь остается только установить собранную полуось на автомобиль, закрепить суппорт и подключить задние дисковые тормоза на ВАЗ-2107 к системе.
Подключение
В процессе подключения нет совершенно никаких сложностей. Дисковые тормоза будут использовать штатную магистраль. Также не следует забывать и о «колдуне». Это регулятор тормозного усилия. Если на ВАЗ-2107 его по каким-то причинам нет, тогда необходимо обязательно вернуть его. А иначе усилие будет передаваться неравномерно. В результате задние дисковые тормоза будут срабатывать раньше, чем передние.

Многие снимают «колдун» и потом жалеют об этом. Если задние тормоза схватывают раньше, чем передние, возрастает риск заноса оси автомобиля. Также в этом случае механизмы тормозной системы будут сильно перегреваться и быстрее изнашиваться. А снимают элемент по причине большей эффективности тормозов. Но на самом деле эффекта никакого нет. Лучше вернуть заводской элемент на место.
Дисковые тормоза и стояночный
Так как установка дисковых элементов требует исключения механического привода ручника, то необходимо установить гидравлический привод. Операция эта несложная. Для этого понадобится главный цилиндр сцепления, рычаг привода, а также два шланга из тормозной системы. Затем из металла варят специальную конструкцию в форме домика. Оптимально использовать сталь толщиной около 3 мм. Шток тормозного привода направляется вперед и укорачивается. Затем изготавливается небольших размеров поршень, который затем будет вставлен в главный цилиндр сцепления. В этот поршень должен входить шток ручника. Остается только подключить конструкцию. Шланг из главного тормозного цилиндра контура выводится в салон автомобиля.

Элемент присоединяется к первому выходу в цилиндр сцепления. Второй шланг идет на «колдун». Схема простая, хотя на первый взгляд может показаться сложной. Так вы успешно совместите задние дисковые тормоза на ВАЗ-2107 с ручником. Без стояночного тормоза довольно проблематично будет использовать автомобиль. Тем более если он подготавливается для профессионального дрифта.
Рекомендации специалистов
После всех этих операций остается только прокачать тормоза. В случае с такой модернизацией прокачка будет занимать больше времени. Для этого необходимо демонтировать стояночный тормоз и установить его вертикально. Это избавит от воздушных пробок. Тормозную жидкость лучше всего заливать с более высокой температурой кипения. Необходимо периодически обслуживать задние дисковые тормоза на ВАЗ-2107. Ремонт их аналогичен обслуживанию любых других похожих конструкций.
Источник https://www.drive2.ru/l/523629494540436265/
Источник https://luxvaz.ru/vaz-2110/65-ustanovka-zadnih-diskovyh-tormozov.html
Источник https://fb.ru/article/293835/zadnie-diskovyie-tormoza-na-vaz—ustanovka